ПОД УСАДКУ
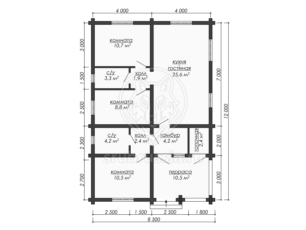
Решили купить сруб с мансардой и террасой для строительства надежного дома? Изучите наш популярный проект сруба дома под усадку с детальной визуализацией размером 12х8 метров. На странице вы можете посмотреть 3D-модели, изучить чертежи фасадов и продуманные планировки. Мы предлагаем качественный сруб под усадку, который станет идеальной основой для вашего будущего жилья. Узнать стоимость сруба, Вы можете позвонив по телефону или оставив заявку удобным способом.
Оставьте заявку и наш специалист перезвонит Вам в удобное для Вам время
В следующих регионах:
Наша производственная площадка расположена в городе Велиж в Смоленской области, именно отсюда ваши срубы отправляются заказчикам в указанные регионы

© 2001-2025 | Все права защищены